Mieszkanie na Kole

Lokalizacja  /   Warszawa, ul. Majakowskiego
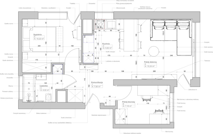
Powierzchnia  /   49 m2
Data  /   2016
Projekt  /   Krzysztof Ziółkowski, Edyta Jaworska
To efekt gruntownej przebudowy mieszkania z lat 60. na warszawskiej Woli. Wspólnie z właścicielem zdecydowaliśmy o przeniesieniu kuchni do aneksu jadalnego połączonego ze strefą dzienną. Dzięki temu uzyskaliśmy dodatkową przestrzeń do pracy biurowej dla mieszkańców. Rezultat to funkcjonalne, przestrzenne i dobrze skomunikowane mieszkanie. Efekt wzmacnia dobór materiałów i kolorystyki.